LOT 3 SALEM RIDGE
Mineral Bluff
























Description
LOT 3 SALEM RIDGE, Mineral Bluff
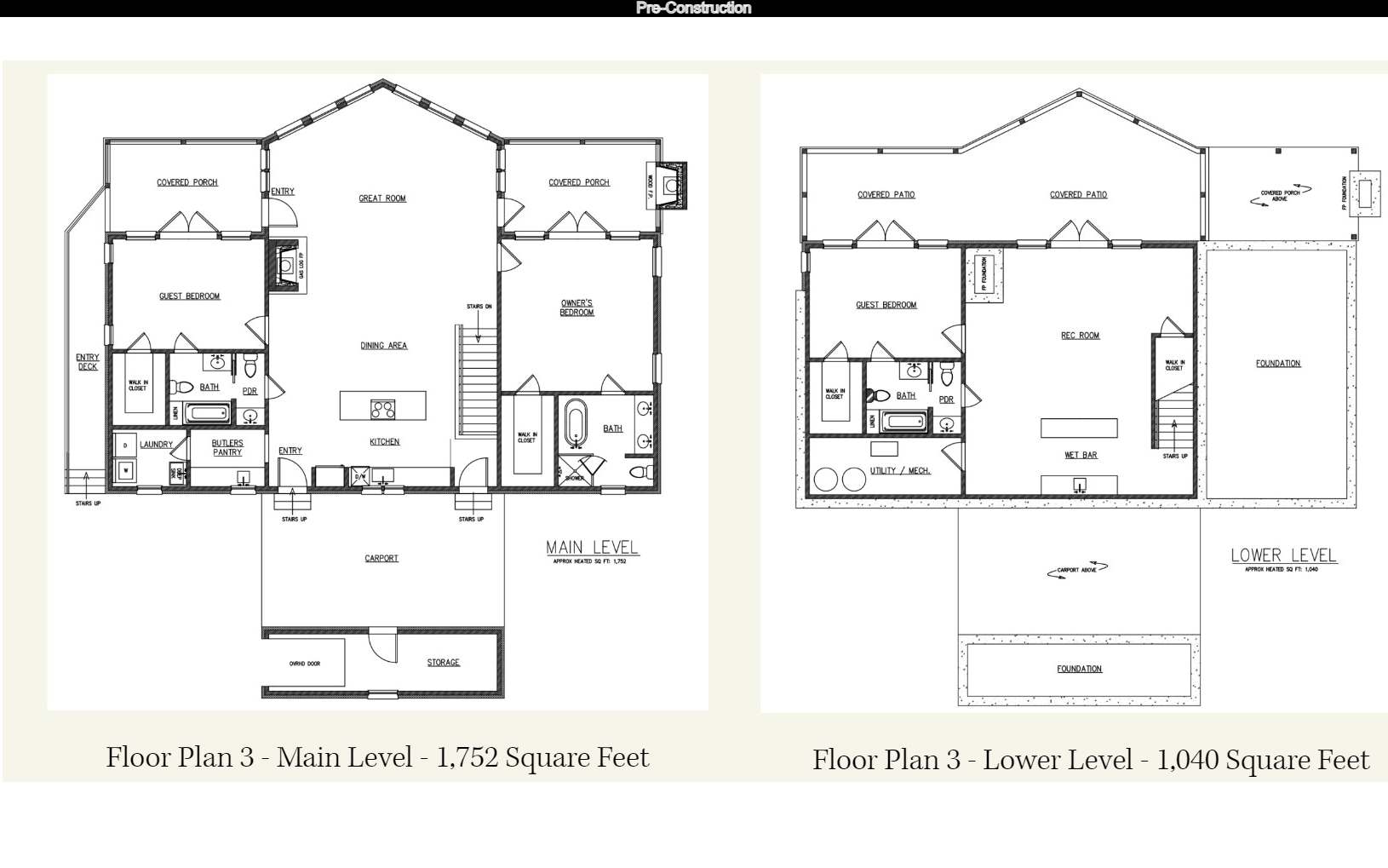
Pre-Construction. Exclusive SALEM RIDGE “Log Homes of Yellowstone” Subdivision!! Don’t miss this opportunity to own an original CUSTOM BUILT & FURNISHED rustic masterpiece. These skillfully designed homes are perched on a lovely RIDGE with gorgeous MOUNTAIN VIEWS. The road is a gentle & easy drive into the development. The BUILDER FINANCES CONSTRUCTION, saving the buyer construction loan costs & interest payments! The home will be embellished with the signature upscale & unique finishes including outdoor PORCH FIREPLACE, circular-sawn PINE FLOORING, hand-crafted light fixtures and furniture, décor from out west & petrified basins. Many of the timbers used are brought from Wyoming, hand-picked and cut by the builder and his furniture-maker. Photos are from other builds and representative of the home to come. STR allowed. Convenient to Blue Ridge & Murphy Casino.
Facilities
- Terrain: Level,Gentle,Rolling,Steep
- Frontage: Road
- Road: Gravel
- Driveway: Gravel
- Style: Cabin,Country Rustic,Two Story
- Subdivision: SALEM RIDGE
- Water: Shared Well
- Construction: Frame,Poured Concrete
- Heating: Central,Heat Pump,Fireplace Wood,Gas Logs,Fireplace - vented,See Remarks
- Cooling: Central Heat Pump
- Roof: Metal
- Basement: Finished
- Sewer: Septic
- Schools: Fannin County - Area 6
Map
Why Choose Us?
Great Reviews
Low Realtor Fees
Trusted Name
Additional Information
- Listing Agent:
- KSCHRO
- Listing Office:
- MSIR
